» 电液动犁式卸料器系列 » DYTH犁式卸料器
DYTH电液动可变槽角犁式卸料器质量优异,价格优廉,产品质量是 的。本公司坚持"以质量 、诚信为本、用户 上"的经营方针,设以计精心、制造优良、 、服务 诚、用户满意是我们的经营理念,信守合同提供 价廉的产品是我们的经营策略。
DYTH电液动可变槽角犁式卸料器广泛用于矿山、冶金、电场、煤场、集运站、港口码头等输送机的分段卸料。液动犁式卸料器是安装在胶带输送机的中间架上,执行卸料及控制物料输送流量、流向的机械产品,能将交代输送的物料均匀、连续卸入料斗或需要的场所。
本卸料器增加了可变槽角、副犁刀等,并改用电液推杆做动力源,克服了老式卸料器犁料不尽、刮胶带以及过载能力差,常烧毁电机,顶弯丝杠,机械易损坏等缺点。
工作原理:
DYTN电液动犁刀式卸料器是以电液推杆为动力源,工作时通过推杆伸出驱动杆,带动框架前进完成机头下落,并支撑起平托辊组,使胶带工作面平直,机头下沿与胶带面贴合紧密,将胶带上物料写入斗中,送到需要场所。卸料完毕后,启动电液推杆而缩回驱动杆,带动框架后退,犁头上抬,可变托辊组由平行变回槽形,让物料平稳通过。
1、动力源驱动部分是 国内 新手电两用液压式电液推杆,克服了电动推杆的缺陷(过载能力差、烧电机、丝杠顶弯)而卡死,保持了电动推杆的优点(无泄漏、自索性),通过控制电机正反转实现犁头起落。
2、犁头部分分为前部(合金鉻锰或石棉材质)犁头和后部( 胶版),使卸料 干净。
3、犁头增加的锁紧装置为机械拉紧式,可调节犁刀的高低,以 佳面贴近胶带,工作时犁刀不会因煤的冲击力而抬起或抖动,避免了胶带被撕裂、磨损及漏煤现象。
4、驱动部分的电液推杆有两种安装形式:
(1)电液推杆放在分煤机上部;
(2)电液推杆放在分煤机的左侧或右侧, 大的方便了用户。
5、卸料器专用锁气漏斗的翻板采用高鉻锰 材料:
(1)延长了使用寿命达20年,减少了维修量;
(2)减少诱导鼓风,使其减少到原来的10%以下;
(3)使物料均匀,防止跑遍和粘料及沿途撒料。
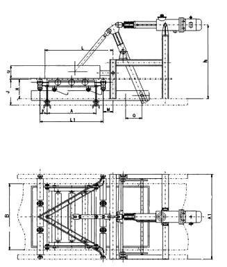
三、电液动双侧犁式卸料器外形图:

尺寸参数:

外形图:

尺寸参数:
